海老名市社家第16 新築戸建 全3棟
海老名市近辺での物件情報:大好評のあの物件「海老名市社家第16 新築戸建 全3棟」。ファミリーマート 海老名運動公園前店まで徒歩4分と近場にコンビニがあるのもポイント。駅まで徒歩14分の場所にある物件です。初めてのマイホームに新築戸建てはいかがでしょうか。海老名市についてお問い合わせいただければ、地域情報に詳しい当社スタッフが対応いたします。もちろん不動産についてもご連絡くださいませ。
物件情報
周辺施設
海老名市社家第16 新築戸建 全3棟 の物件概要
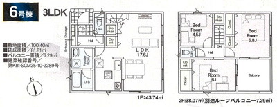
【新築一戸建】| 所在地 | 神奈川県海老名市社家2丁目 | ||
|---|---|---|---|
| 交通 | |||
| 価格 | 3,380万円 | 築年月(築年数) | 2025年 10月 ( 新築 ) |
| 建物面積/坪数 | 81.81㎡/24.74坪 | 土地面積/坪数 | 100.40㎡/30.37坪 |
| 種別/構造 | 新築一戸建 / 木造 | 地目 | 宅地 |
| 備考 | 気になるイチオシ物件情報:「海老名市社家第16 新築戸建 全3棟」。近くにはファミリーマート 海老名運動公園前店(徒歩4分)がありちょっとした買い物に便利です。令和7年10月完成の新築物件。綺麗で清潔感のある室内が新築戸建ての特徴です。相模線社家周辺の物件をお探しの際は、当社スタッフまでお気軽にご相談ください。 | ||
| 取扱会社 |
|
||
※地図上に表示される物件の位置は付近住所に所在することを表すものであり、実際の物件所在地とは異なる場合がございます。
海老名市社家第16 新築戸建 全3棟の販売物件情報
海老名市社家第16 新築戸建 全3棟へのお問い合わせ
海老名市社家第16 新築戸建 全3棟の過去に掲載した物件
| 間取り | 建物面積 | 土地面積 | 方位 | 詳細 |
|---|---|---|---|---|
| *** | *** | *** | *** | 詳細を見る |











